- 価格
- 6,580万円
- 種別
- 新築戸建
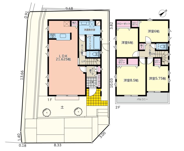
- 間取
- 4LDK
-
- 所在地
- 東京都町田市本町田
- 交通
- 小田急小田原線玉川学園前駅 徒歩16分
物件詳細
| 築年月 | 新築/中古 | 新築・未入居 | |
|---|---|---|---|
| 面積 | 57.96m² | 計測方式 | 壁芯 |
| バルコニー | 向き | ||
| 建物階数 | 地上2階 | 部屋階数 | |
| 部屋/区画番号 | 総戸/区画数 | 1 | |
| 建物構造 | 木造 | ||
| 敷地全体面積 | 162.27m² | 延べ床面積 | 113.03m² |
| 建築面積 | 57.96m² | ||
| 間取内容 | |||
| 駐車場 | 取引態様 | 仲介 | |
| 引渡/入居時期 | 相談 | 現況 | 未完成 |
| 地目 | 宅地 | 用途地域 | 第一種低層住居専 |
| 都市計画 | 市街化区域 | 地勢 | ひな段 |
| 土地面積 | 162.27m² | 土地面積計測方式 | 公簿 |
| 私道負担面積 | 無m² | ||
| セットバック | 無 | セットバック量 | 無m² |
| 建ぺい率 | 40% | 容積率 | 80% |
| 土地権利 | 所有権 | 接道状況 | 角地 |
| 接道方向1 | 北東 | 接道間口1 | |
| 接道種別1 | 接道幅員1 | 5m | |
| 位置指定道路1 | |||
| 接道方向2 | 南東 | 接道間口2 | |
| 接道種別2 | 接道幅員2 | 5m | |
| 位置指定道路2 | |||
| 国土法届出 | 不要 | ||
| 周辺環境 | |||
| 設備・条件 | 都市ガス 公営水道 排水下水 | ||
| 物件番号 | |||
| 自社物 | 先物 | 状態 | 売出中 |
Loading...
おおよその位置になります
※物件掲載内容と現況に相違がある場合は現況を優先と致します。
Contact
お電話からのご予約・お問い合わせ
TEL 0120-918-948
営業時間10:00~18:00
定休日 火曜日・水曜日











