中古戸建 【中古戸建】玉学園前駅 徒歩9分 スウェーデンハウス施工の大型3LDK。北西角地・土地47坪・建物37坪
new

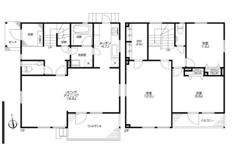
(間取) (外観)
(外観)
(外観)
(外観)
(外観)
  • 価格
    5,980万円
  • 種別
    中古戸建
  • 間取
    3LDK
  • 所在地
    東京都町田市玉川学園1丁目  
  • 交通
    小田急小田原線玉川学園前駅 徒歩9分

物件詳細

築年月1998/01 新築/中古中古
面積 計測方式 壁芯
バルコニー 向き
建物階数 地上2階  部屋階数
建物構造 木造
敷地全体面積 157.57m² 延べ床面積 124.86m²
間取内容 LDK18.8畳 1階 1室  洋室12.2畳 2階 1室  洋室8.8畳 2階 1室  洋室7.2畳 2階 1室  
+WIC
駐車場  1台 取引態様 仲介
引渡/入居時期 相談 現況 空家
地目 宅地 用途地域 第一種低層住居専
都市計画 市街化区域 地勢
土地面積 157.57m² 土地面積計測方式
建ぺい率 40% 容積率 80%
土地権利 所有権 接道状況 角地
接道方向1 接道間口1 14.05m
接道種別1 公道 接道幅員1 5.0m
位置指定道路1
接道方向2 西 接道間口2 9.19m
接道種別2 公道 接道幅員2 5.0m
位置指定道路2
周辺環境 町田市立町田第五小学校 町田市立南大谷中学校
設備・条件 都市ガス 公営水道 排水下水
物件番号 25102701
自社物 先物 状態 売出中

◆スウェーデンハウスの特徴

建材・仕上材に天然無垢材使用

三代住み継ぐ家を理想とする住まい

高気密・高断熱・計画換気

優れた耐震性能

火災に強い防火性能

強力な台風にも負けない耐風・耐水性能

Loading...
おおよその位置になります
※物件掲載内容と現況に相違がある場合は現況を優先と致します。




    個人情報の取扱いについては下記のリンクよりご確認下さい。
    必ずこちらをご一読の上、同意された方は下記にチェックを入れてください。
    >>プライバシーポリシー(個人情報のお取り扱い)へ

    「プライバシーポリシー(個人情報のお取り扱い)」に同意します。
    必須はい

    近くの関連物件

    • new
      【中古戸建】玉川学園前駅 徒歩7分 スウェーデンハウス施工2LDK(3LDKに変更可能)南斜面高台・土地151㎡・建物104㎡【中古戸建】玉川学園前駅 徒歩7分 スウェーデンハウス施工2LDK(3LDKに変更可能)南斜面高台・土地151㎡・建物104㎡
      5,980万円 2LDK
      町田市 玉川学園2丁目

      小田急小田原線玉川学園前駅
    • new
      【中古戸建・土地】玉川学園前駅 ほぼ平坦徒歩10分 土地49坪・建物32坪 旧開発分譲地!区画の整った住宅街の高台に立地
      2,990万円 4LDK
      小田急小田原線玉川学園前駅
    • 【大型中古】玉川学園前駅 徒歩8分・南側道路・接面16.5m!・日当眺望通風良好!2世帯仕様【大型中古】玉川学園前駅 徒歩8分・南側道路・接面16.5m!・日当眺望通風良好!2世帯仕様
      3,980万円
      町田市 玉川学園7丁目

      小田急小田原線玉川学園前駅
    • 【中古戸建】玉川学園前駅 平坦徒歩8分・2001年築・土地42坪・建物33坪・整形地
      4,480万円 3SLDK
      小田急小田原線玉川学園前駅
    • 【築浅戸建】駅徒歩9分・令和5年築・三井不動産分譲・南西角地
      6,700万円 4LDK
      小田急小田原線玉川学園前駅
    Contact
    お電話からのご予約・お問い合わせ
    TEL 0120-918-948
    営業時間10:00~18:00
    定休日 火曜日・水曜日